F A C E B O O K

Facebook

This was our firm’s first time cooperating with Facebook to build them a space for their special “HACK” program in Sao Paulo, Brazil.

Scope of Work : Lead Interior Designer, Project Envisioning, Design Package production, Client presentations, Build-out, FF&E Selection

24991048_10101808016193039_5263206110648678419_n.jpg

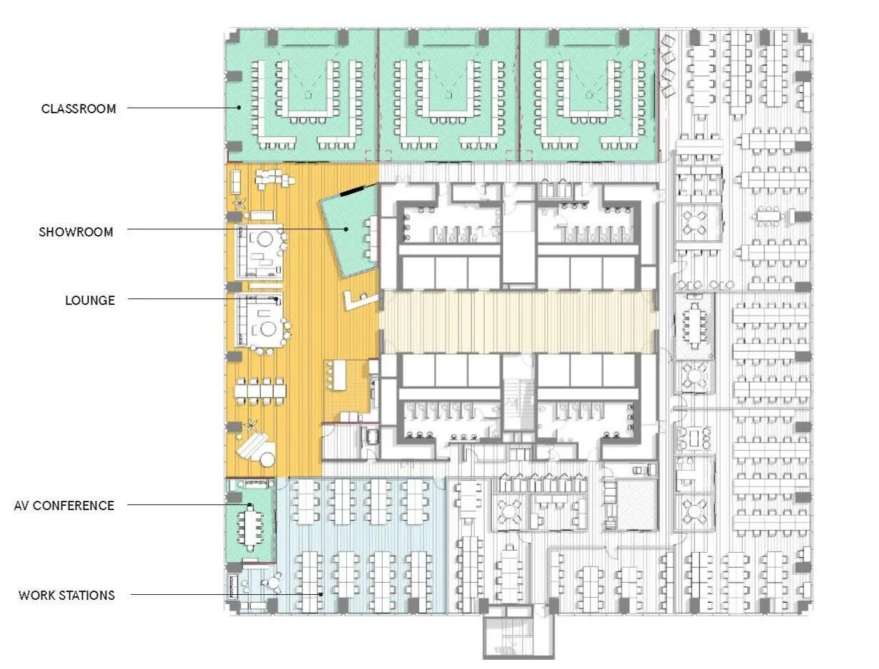
Floorplan

8F094AB2-7958-4272-AF80-2E9B2B365DF5_Page_02.jpg
24993544_10101808016188049_6044280964741832790_n.jpg
8F094AB2-7958-4272-AF80-2E9B2B365DF5_Page_24.JPG
8F094AB2-7958-4272-AF80-2E9B2B365DF5_Page_14.JPG
25158412_10101807626359269_1821147771300265673_n.jpg
8F094AB2-7958-4272-AF80-2E9B2B365DF5_Page_22.JPG
24910088_10101807626099789_6198800975177097238_n.jpg
Janet yang